Framex 71 – plastikiniai langai
- 6 kameros, 71 mm storis
- Vokiška ROTO NX furnitūra
- Iki 42 mm stiklo paketas
Framex 71 – patikimi ir šilti 6 kamerų langai jūsų namams
Kas yra Framex 71?
Framex 71 – 6 kamerų PVC langų sistema su 71 mm montavimo gyliu, sukurta šiltiems, sandariems ir komfortiškiems namams. Tai idealus pasirinkimas renovacijai ir naujai statybai, kai norisi geros šilumos izoliacijos, patikimumo ir racionalios kainos. Ši sistema yra viena stabiliausių ir ilgaamžiškiausių savo klasėje.
Kodėl verta rinktis?
Framex 71 langai sukurti taip, kad tarnautų ilgai ir išliktų sandarūs net po daugelio metų naudojimo. Vokiška ROTO NX furnitūra užtikrina tylų, sklandų ir saugų varstymą, o iki 42 mm stiklo paketai efektyviai sulaiko šilumą ir lauko triukšmą. Tvirta plieno armuotė suteikia konstrukcijai stabilumo, todėl langai nesikraipo, nekliba ir išlaiko savo formą.
Dažniausiai reikalingi Framex 71 langų dydžiai nuolat laikomi sandėlyje Kaune – galite iškart matyti kainas ir atsiimti langus tą pačią dieną. Jei reikia individualių matmenų, langus gaminame pagal jūsų projektą ir padedame išsirinkti optimalų variantą.
Framex 71 privalumai
- 6 kamerų konstrukcija – puikus šilumos ir triukšmo sulaikymas.
- 71 mm profilis – universalus pasirinkimas renovacijai ir naujai statybai.
- Iki 42 mm stiklo paketas – šiltesni, tylesni ir energiją taupantys langai.
- ROTO NX furnitūra – patikimas ir saugus varstymas kasdien.
- Tvirta plieno armuotė – ilgaamžiškumas ir stabilumas dideliems langams.
- Laminavimo galimybės – balti arba medžio imitacijos langai, tinkantys bet kokiam interjerui ir fasadui.
Santrauka: Framex 71 – tai patikima ir šiuolaikiška langų sistema, suteikianti jūsų namams šilumą, tylą ir ramybę. Tai modelis, kuris užtikrina kokybę be perteklinių išlaidų ir puikiai tinka tiek pirmam langų keitimo projektui, tiek didesniems namų atnaujinimams.
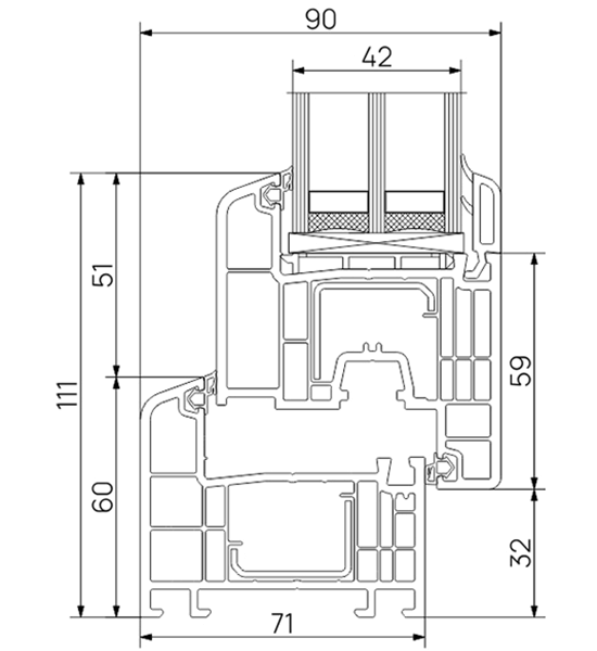
Framex 71 – techninės charakteristikos

Savybė | Parametras |
|---|---|
Montavimo gylis | 71 mm |
Matoma profilio dalis (rėmas + varčia) | 111 mm |
Kamerų skaičius | 6 |
Šilumos perdavimo koeficientas (Uf) | 1,2 W/m²K |
Furnitūra | ROTO NX, ašis 13 mm |
Apsauga nuo įsilaužimo | Iki RC2 |
Stiklo paketo storis | 24 mm, 32 mm, 42 mm |
Distancinis rėmelis | Vientisas lenktas |
Paketo užpildymas | Argono dujos |
Stiklajuostės | Apvalios |
Sandarinimo sistema | 2 tarpinės, TPE |
Šilumos varžos koeficientas (Rf) | 0,85 m²°C/W |
Max varčios dydis | 1600 × 2400 mm |
Max konstrukcijos dydis | 3000 × 3000 mm |
Min konstrukcijos dydis | 400 × 400 mm |
Pagrindinės kameros plotis | 31,5 mm |
Paviršius | Blizgus |
Galimos spalvos
*Atspalviai ekrane gali skirtis nuo faktinių dėl apšvietimo ir ekrano nustatymų.
Framex linija – langai ir durys
5 populiariausios PVC langų ir durų sistemos – šilumos, dizaino ir kainos balansas kiekvienam projektui.
Framex 80 MD (langai)
A+ klasės langai su triguba tarpine.
Framex 80 AD (langai)
Efektyvus kainos ir kokybės santykis.
Framex 71 (langai)
Patikimas bazinis sprendimas iš sandėlio.
Framex 80 MD (durys)
Trijų tarpinių sistema – maksimali šiluma ir sandarumas.
Framex 71 (durys)
Ekonomiškas, greitas ir patikimas sprendimas iš sandėlio.