Framex 80 MD – plastikiniai langai
- 7 kamerų, 80 mm profiliai
- 3 sandarinimo tarpinės
- Vokiška ROTO NX furnitūra
- Iki 52 mm stiklo paketas
Kas yra Framex 80 MD?
Framex 80 MD – tai premium klasės plastikiniai langai su 7 kamerų profiliu, 3 tarpinių sistema ir 80 mm montavimo gyliu. Tai inovatyvi sistema, užtikrinanti labai aukštą šilumos ir garso izoliacijos lygį, ilgaamžiškumą ir tvarkingą, modernų dizainą.
Dėl Smart Comfort sprendimų ir kruopščiai suprojektuotos profilio geometrijos Framex 80 MD atitinka ir pranoksta šiuolaikinius energinio efektyvumo reikalavimus, todėl puikiai tinka A+ ir A++ klasės pastatams, naujai statybai ir renovacijai.
Kodėl verta rinktis Framex 80 MD?
Patobulinta 7 kamerų konstrukcija padeda dar geriau sulaikyti šilumą ir sumažinti šilumos tiltus, o tai tiesiogiai mažina šildymo sąnaudas ir suteikia daugiau komforto žiemą bei vasarą. Trijų sandarinimo tarpinių (TPE) sistema didina sandarumą, apsaugo nuo skersvėjų, drėgmės ir dulkių patekimo į vidų.
Langai gaminami iš aukštos kokybės PVC, armuojami cinkuoto plieno profiliu, todėl konstrukcija yra standi, stabili ir ilgaamžė. Galimybė komplektuoti iki 52 mm storio stiklo paketą leidžia pasiekti puikų energinį efektyvumą ir komfortišką garso izoliaciją.
Framex 80 MD privalumai
- 7 kamerų sistema – maksimalus šilumos ir garso izoliacijos lygis.
- 80 mm montavimo gylis – tinka aukštos energinės klasės pastatams ir renovacijai.
- 3 sandarinimo tarpinės (TPE) – daugiau sandarumo, mažiau skersvėjų ir drėgmės.
- Stiklo paketai iki 52 mm – labai geras energinis efektyvumas ir triukšmo slopinimas.
- Cinkuoto plieno armavimas – tvirtas, nebijantis apkrovų ir didesnių konstrukcijų rėmas.
- ROTO NX furnitūra, ašis 13 mm – patikimas varstymas ir didesnė apsauga nuo įsilaužimo (iki RC2).
Santrauka: Framex 80 MD – tai aukščiausios klasės plastikiniai langai, sukurti tiems, kuriems svarbu šiluma, tyla, sandarumas ir solidus vaizdas tiek iš vidaus, tiek iš fasado pusės.
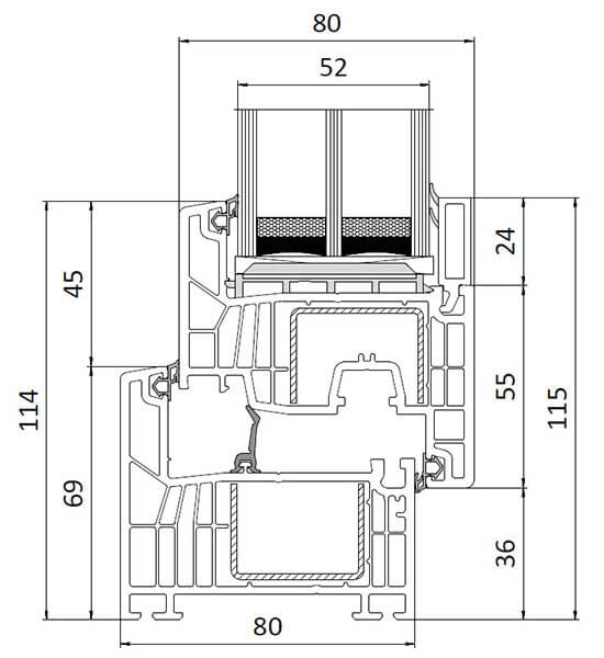
Framex 80 MD – techninės charakteristikos

Savybė | Parametras |
|---|---|
Montavimo gylis | 80 mm |
Matoma profilio dalis (rėmas + varčia) | 115 mm |
Kamerų skaičius | 7 |
Šilumos perdavimo koeficientas (Uf) | 1,1 W/m²K |
Furnitūra | ROTO NX, ašis 13 mm |
Apsauga nuo įsilaužimo | Iki RC2 |
Stiklo paketo storis | 44 mm, 52 mm |
Distancinis rėmelis | Vientisas lenktas |
Paketo užpildymas | Argono dujos |
Stiklajuostės | Apvalios |
Sandarinimo sistema | 3 tarpinės, TPE |
Šilumos varžos koeficientas (Rf) | 0,91 m²°C/W |
Max varčios dydis | 1600 × 2400 mm |
Max konstrukcijos dydis | 3000 × 3000 mm |
Min konstrukcijos dydis | 400 × 400 mm |
Pagrindinės kameros plotis | 41,8 mm |
Paviršius | Blizgus |
Galimos spalvos
*Atspalviai ekrane gali skirtis nuo faktinių dėl apšvietimo ir ekrano nustatymų.
Framex linija – langai ir durys
5 populiariausios PVC langų ir durų sistemos – šilumos, dizaino ir kainos balansas kiekvienam projektui.
Framex 80 MD (langai)
A+ klasės langai su triguba tarpine.
Framex 80 AD (langai)
Efektyvus kainos ir kokybės santykis.
Framex 71 (langai)
Patikimas bazinis sprendimas iš sandėlio.
Framex 80 MD (durys)
Trijų tarpinių sistema – maksimali šiluma ir sandarumas.
Framex 71 (durys)
Ekonomiškas, greitas ir patikimas sprendimas iš sandėlio.