Framex 80 AD – plastikiniai langai
- 5 kamerų, 80 mm profiliai
- Vokiška ROTO NX furnitūra
- Iki 52 mm stiklo paketas
Framex 80 AD – 6 kamerų langai šiuolaikiškam būstui
Kas yra Framex 80 AD?
Framex 80 AD – tai moderni 5 kamerų PVC langų sistema su 80 mm montavimo gyliu, skirta gyvenamiesiems ir komerciniams pastatams, kuriuose svarbus šilumos efektyvumas, patikimumas ir estetiškas dizainas. Tai puikus sprendimas, kai norima aukštesnės klasės langų už racionalią kainą.
Kodėl verta rinktis?
Didesnis 80 mm profilio gylis ir 6 kamerų konstrukcija užtikrina gerą šilumos bei garso izoliacijos balansą ir sumažina šilumos tiltelius. Langai gali būti komplektuojami su iki 52 mm stiklo paketais, todėl puikiai tinka A ir A+ klasės pastatams. Vokiška ROTO NX furnitūra su 13 mm ašimi suteikia tvirtesnį fiksavimą ir užtikrina sklandų varstymą kasdien.
Framex 80 AD gaminami tiek klasikinės baltos spalvos, tiek „antracitas masėje“ versijoje bei įvairiais laminuotais variantais – nuo modernių pilkų iki natūralių medžio imitacijų. Tai leidžia lengvai priderinti langus prie fasado ir interjero, išlaikant vientisą architektūrinį stilių.
Framex 80 AD privalumai
- 5 kamerų konstrukcija – geresnė šilumos ir garso izoliacija.
- 80 mm montavimo gylis – solidus profilis ir mažesni šilumos nuostoliai.
- Stiklo paketai iki 52 mm – šiltesni ir tylesni energiniai sprendimai.
- ROTO NX furnitūra (13 mm ašis) – didesnis saugumas, sklandus varstymas.
- Sauga iki RC2 klasės – papildoma apsauga nuo įsilaužimo.
- Antracitas masėje ir laminavimas – modernus dizainas be baltų pjūvio kraštų, platus spalvų pasirinkimas.
Santrauka: Framex 80 AD – tai šiuolaikiška ir patikima langų sistema, pasižyminti geru šilumos efektyvumu, moderniu dizainu ir itin patrauklia kaina. Puikus pasirinkimas tiek renovacijai, tiek naujai statybai, kai norima aukštos kokybės ir tvarkingo, estetiško fasado vaizdo.
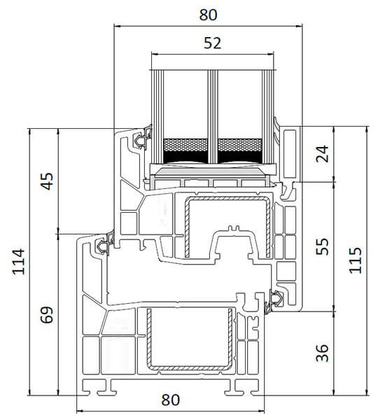
Framex 80 AD – techninės charakteristikos

Savybė | Parametras |
|---|---|
Montavimo gylis | 80 mm |
Matoma profilio dalis (rėmas + varčia) | 115 mm |
Kamerų skaičius | 5 |
Šilumos perdavimo koeficientas (Uf) | 1,3 W/m²K |
Furnitūra | ROTO NX, ašis 13 mm |
Apsauga nuo įsilaužimo | Iki RC2 |
Stiklo paketo storis | 44 mm, 52 mm |
Distancinis rėmelis | Vientisas lenktas |
Paketo užpildymas | Argono dujos |
Stiklajuostės | Apvalios |
Sandarinimo sistema | 2 tarpinės, TPE |
Šilumos varžos koeficientas (Rf) | 0,89 m²°C/W |
Max varčios dydis | 1600 × 2400 mm |
Max konstrukcijos dydis | 3000 × 3000 mm |
Min konstrukcijos dydis | 400 × 400 mm |
Pagrindinės kameros plotis | 41,8 mm |
Paviršius | Blizgus |
Galimos spalvos
*Atspalviai ekrane gali skirtis nuo faktinių dėl apšvietimo ir ekrano nustatymų.
Framex linija – langai ir durys
5 populiariausios PVC langų ir durų sistemos – šilumos, dizaino ir kainos balansas kiekvienam projektui.
Framex 80 MD (langai)
A+ klasės langai su triguba tarpine.
Framex 80 AD (langai)
Efektyvus kainos ir kokybės santykis.
Framex 71 (langai)
Patikimas bazinis sprendimas iš sandėlio.
Framex 80 MD (durys)
Trijų tarpinių sistema – maksimali šiluma ir sandarumas.
Framex 71 (durys)
Ekonomiškas, greitas ir patikimas sprendimas iš sandėlio.